서울 중구가 8일 약수동 남산타운 입구와 임대 관리동·경로당을 연결하는 엘리베이터 설치 계획을 확정했다고 발표했다고 밝혔다.
임대동에서 내다본 임대관리동 옥상
지난 2000년 지어진 남산타운은 모두 42개동(분양35, 임대7), 5천 150세대가 거주하는 대규모 아파트 단지이다. 특히 임대동은 매봉산 경사지에 위치하고 있어 아파트 단지 출입구까지 이동하는 데 상당한 불편이 있었으며, 401명의 장애인과 1,200세대가 넘는 65세 이상 어르신들이 거주해 이동편의 확보가 시급한 과제였다.
관리주체인 SH공사는 문제해결을 위해 지난 2009년 임대관리동 외벽에 설치된 승강기를 고쳐보려 했으나 공급이 중단된 모델로 수리가 불가능했다. 여기에 남산타운 옹벽 붕괴 우려로 엘리베이터 신설도 여의치 않았다.
이에 중구는 주민들의 불편사항을 해결하기 위해 직접 팔을 걷어붙이고 나섰다. 지난해 7월 승강기 설치를 위해 전문가의 자문을 구하고, 10월에는 시와 SH공사, 거주민 등과 설치 논의를 진행했다. 또 11월에는 `남산타운 임대관리동 리모델링 기본계획 및 건물구조 안전진단 용역`을 추진했다.
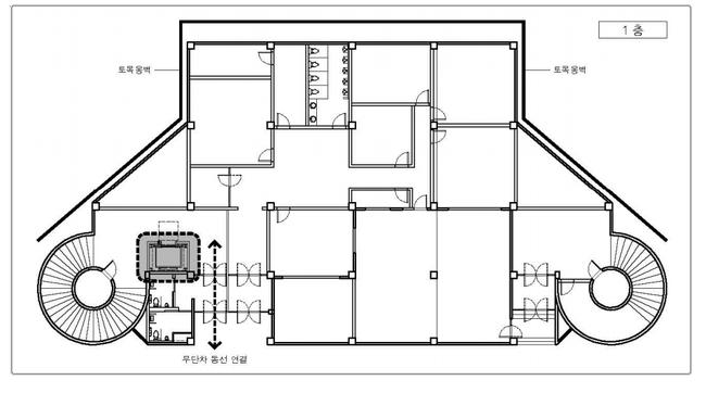
1층 엘리베이터 신설 장소
용역 결과, 관리동 건물을 리모델링해 엘리베이터를 설치하면 안전성과 이동 편의성을 모두 만족할 수 있다는 결론이 나왔다. 토목 옹벽에도 전혀 영향을 미치지 않을뿐더러 임대동에 거주하는 주민들이 주로 지나다니는 동선과도 잘 맞물리기 때문. 새로 지어지는 엘리베이터는 13인승 장애인 겸용으로 옥탑에서 아파트 연결통로로 이어지며, 관리동 지상 1층까지 기존보다 확장 운행한다.
서울시는 지난 4월 25억 원의 예산을 확보하고, SH공사를 통해 오는 12월까지 설계 완료 및 내년 3월 착공, 10월 준공할 계획임을 구에 알려왔다. 고지대에 위치한 남산타운 임대관리동에 엘리베이터 설치가 완료되면 인근 약수역까지의 접근성도 한층 좋아질 것으로 기대된다.
경로당을 이용하며 남산타운에 거주하는 한 어르신은 "엘리베이터 설치는 노인과 장애인들을 위해 꼭 필요한 일이었다"며 "중구와 서울시가 우리들의 민원을 귀담아듣고 숙원을 해결해줘 고맙다"고 전했다.
김길성 중구청장은 "사업시행자인 SH공사에 조속한 설계와 시공을 요청한다"며 "앞으로도 주민 불편 해소를 위해 적극 앞장서겠으며, 구민의 목소리 하나하나에 귀 기울여 세심하게 지역을 살피겠다"고 말했다.
김상현
기자
헤드라인 뉴스
최신 뉴스
- 제주, 가축분뇨 자원화조직체 평가 및 우수 업체 지원
- 정부, 부동산 시장 점검 TF 가동… “주거안정 최우선, 시장 불안 총력 대응”
- 생성형 AI 저작권 분쟁 예방 나선다… 등록 및 활용 안내서 6월 말 발간
- 빵류 섭취 후 살모넬라균 감염 집단발생… 세종·부안서 추가 확인
- 제12회 공주정신건강학술문화제 개최… ‘정신건강 위기’ 사회적 해법 모색
- 국내 최초 유일 전기차부품 쇼핑몰 ‘이파트 Epart’ 운영 기업 굿바이카 남준희 대표, 환경부 장관 표창 수상
- KGM, 무쏘 EV 및 토레스 하이브리드 글로벌 시장 수출 선적
- 울산시, `2025년 목욕탕 노후굴뚝 정비사업` 1호 굴뚝 해체 완료
- 관악구, 가족과 함께하는 시원한 물총놀이…`가족 숲포츠 올림픽` 개최
- 마포구, 구민의 마음 헤아린 적극행정 함께 추천해주세요
많이 본 뉴스
- 1평택시, 국제학교 유치 협상 마무리…최종 선정 절차 착수
- 2네이버클라우드, AI 영상 분석 서비스 ‘MAIU’ 공개…편집시간 1/15로 단축
- 3현대자동차, ‘2026 그랜저’ 출시…스페셜 트림 ‘아너스’ 신설로 선택폭 확대
- 4경기도, 광교저수지·팔당호 녹조예방 총력대응
- 5카카오, ‘MVP 파트너스데이’ 17회째 개최…65개 협력사와 상생 다짐
- 6용산구, Y.로컬랩 실전 창업 교육 실시
- 7강북구, 돌봄특화사업 `우리동네 이음마루` 운영 본격화
- 8인천시, 2025년 집중안전점검 추진 상황 점검
- 9천왕동청소년문화의집, 2025년 천왕청소년마을축제 ‘All Day Youth Day’ 성료
- 10안성시지역사회보장협의체, 2025년 2차 민간위원장 네트워크 회의 추진
일간환경 © 일간환경 All rights reserved.
일간환경의 모든 콘텐츠(기사 등)는 저작권법의 보호를 받은바, 무단 전재, 복사, 배포 등을 금합니다.
RSS